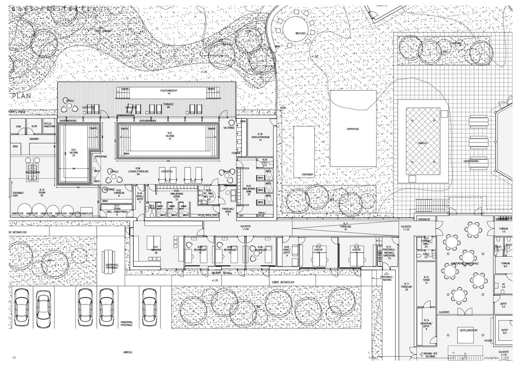
Ny tilbygning
01/08/ 2025
Endelig kom de nye visualiseringer af tilbygningen. 625 kvm med helt nyt badområde, administration, værksted og behandlerrum. Opstart august 2025 og forventet afsluttet oktober 2026.
Samlet budget 28.000.000
Støttet af:






Samlet budget 28.000.000
Støttet af:






Nyt køkken og isbod
01/05/ 2025
Udbygning og renovering af køkken samt etablering af isbod.
Samlet budget 4.000.000
Støttet af:



Samlet budget 4.000.000
Støttet af:



Ny indretning af forpladsen
01/05/ 2024
Ny indretning af det offentlige område på forpladsen med møbler og blomsterbed. Færdig maj 2024.
Samlet budget 210.000
Støttet af:


Samlet budget 210.000
Støttet af:

